Κριτήρια
Τιμή
 
Εμβαδόν
τ.μ.
 
τ.μ.
Δωμάτια
 
Όροφος
 
Έτος κατασκευής
 
Τύπος Θέρμανσης
Μέσο Θέρμανσης

Κατάστημα προς πώληση

Καλλιθέα, Κέντρο

€ 90.000

Homezy Real Estate
Κατάστημα προς πώληση Κέντρο (Καλλιθέα)

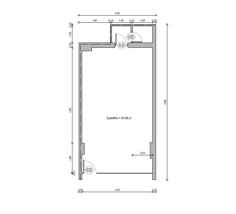
Κατάστημα ισογείου, εξαιρετικής προβολής, σε άριστη κατάσταση, συνολικής επιφάνειας 78 τ.μ. αποτελούμενο από ισόγειο 42,96 τ.μ. με κουζινάκι, wc και υπόγειο 34,94 τ.μ. πολύ φωτεινό. Βρίσκεται στο κέντρο της Καλλιθέας, παράλληλα της Λεωφόρου Ελευθερίου Βενιζέλου, δίπλα στην πλατεία Κύπρου και σε πολύ εμπορικό σημείο. Είναι μισθωμένο σε άριστη οικονομικά επιχείρηση λιανικού εμπορίου έως τις 28/2/2026 με μηνιαίο μίσθωμα 650€. Μια εκπληκτική επενδυτική ευκαιρία για εκμετάλλευση με πολύ καλό ποσοστό απόδοσης.

ID
ΣΠ 1107
Εμβαδόν
78 τ.μ.
Τιμή ανά τ.μ.
€ 1.154
Περιοχή
Κέντρο (Καλλιθέα)
Ζώνη
Εμπορική ζώνη
Όροφος
Ισόγειο
Έτος κατασκευής
1991
Σύστημα Θέρμανσης
Αυτόνομη θέρμανση (Ρεύμα)
Ενεργειακή κλάση
Ζ
Επίπεδα
1
WC
1
Κατάσταση
Ανακαινισμένο
Επιπλέον
Επενδυτικό

Χαρακτηριστικά

  • Αποθήκη
  • Εσωτερική σκάλα
  • Κλιματισμός
  • Πρόσβαση από: Άσφαλτο
  • Προσόψεως
  • Φωτεινό